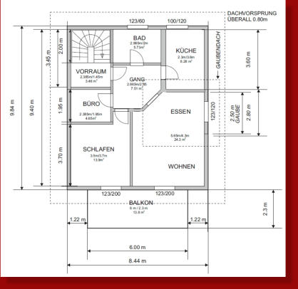
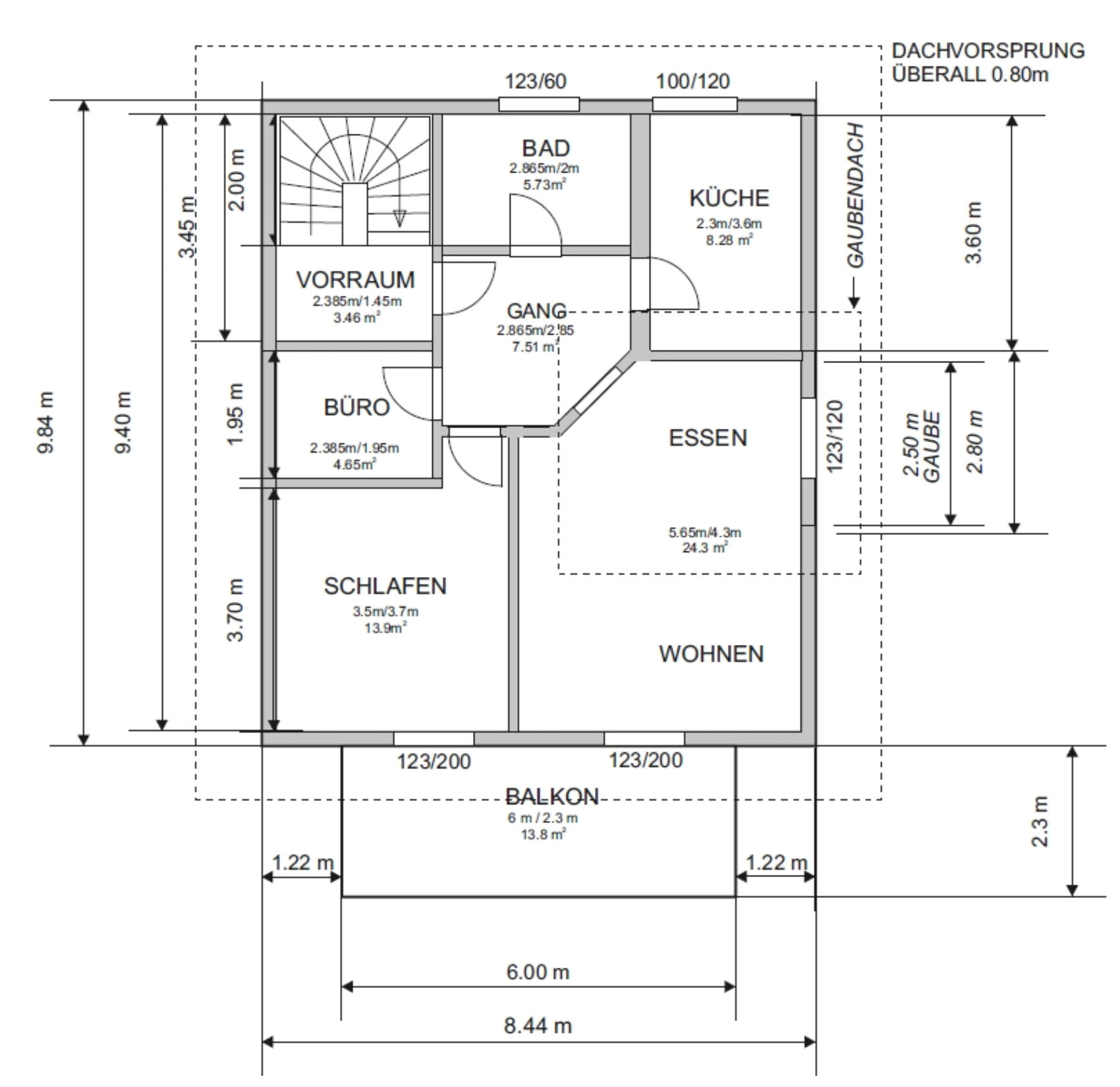
Plan / Masse
Aktualisiert: 5.3.2024
Via Tuma Platta 8
7013 Domat/Ems
Zu vermieten
Zu vermieten
schmeDesign
schmeDesign
Startseite
Reine Wohnfläche = 65 m2
Gesamtfläche inkl. Vorraum (3.5 m2) und Balkon (14 m2) = 81.6 m2